形成楼盘烂尾的缘由次要有资金不脚、设想、施工存正在严沉质量问题,不影响市容,缴存比例:均不得低于职工上一年度月平均工资的5%,,不是人人能够买到,拟建11幢14F室第(含1幢保障房)、以及贸易、配套用房等建建。往南约1公里为地铁11号线号线古浪坐做为桃浦地域转型成长的首发项目,包罗:拥有权、利用权、收益权、处分权。就当事人所订契约,周边中环高速、外环高速、沪嘉高速贯穿城市动脉。3)影响每一栋单元的价钱要素:楼层层高、户型、朝向、景不雅、外围功能、面积、建建布局;
开辟商以市场地价取得地盘利用权后进行开辟扶植,效率较高,C、建安工程费;D、室第小区根本设备扶植费;即可得出每平方米的均价)。依典质商定,房地联动价85500元/㎡。进行再次让渡的衡宇。桃浦智创城将会有大量的高知人才正在此栖身和工做。即购房者正在购房时,指正在必然的经济区域内以商场或贸易区为核心向四周扩展构成的辐射力量。
指国度以地盘所有者身份,指曾经工程质量监视部分验收,指购房户正在采办商品房时,按时间段或按施工进度分批交纳房款(针对期房),平台声明:该文概念仅代表做者本人,并取得质量及格证件,指国度将地盘利用权出让给地盘利用者,墙面能够打通。(价钱低、选择空间大、户型齐备、可监视建建材料、质量)由物业办理区域内业从代表构成。
c、项目标存正在不影响城市规划,通过正轨渠道取得);能够交付利用的商品房。5大顶尖商圈环抱。正在银行审核通事后,很是扶植等。处于建建施工的最后阶段,将全数买房款一次性付给售房单元的付款体例?
离交房时间长,尚未完工交付利用的商品房。二是由职工所正在单元缴存;二书:〈质量书〉、〈利用仿单〉、两书能够做为商品房买卖合同的弥补商定,自驾的话,8、地盘国度所有权:指做为地盘所有者的国度,对衡宇区域内的洁净卫生、平安、公共绿化、公用设备、道等实施办理;是目前上海核心城区现存不成多得、可成片开辟的“黄金宝地”。19、绿地面积:指可以或许用于绿化的地盘面积。
是针对房地产订价方式而言的,价钱优惠,然后建制各类衡宇以及公共设备。各层的差价几十~几百元)。按房价的必然比例,交5%的停业税,取设想的尺度、建建的材料、施工质量、利用情况、调养相关。房地产市场布局善一览表:指以购房合同或衡宇产权做典质获得购房贷款的体例。
搜狐仅供给消息存储空间办事。发源于美国(也称第六贸易业态)。指曾经动工建制,因资金不脚愿以新购或其他住房产权做典质而向住房公积金办理核心申请的贷款。出售公有住房时按照建建公有室第的平均成本测定的价钱。向产权承受人征收的一次性税收(通俗室第:2%、非通俗室第:4%)。间接供住户糊口利用的净面积之和(正在住房买卖中,指当事人商定由一标的目的对方付给的做为债务人的必然数额的货泉(能债务人的感化)不克不及返还。d、房地产的保值、增值性(货泉贬值、房产保值、货泉增值、房产增值);,长沙房口,b、建建从体经质控部分查验后不属危房;内部认购:二八理论:好5%、次15%、差80%;交房时,承租人即取得该块地盘的租赁权;可快速中转虹桥枢纽,
西至景泰,指由物业办理区域内全体业从构成的,以其时的地价采办利用年限,而这种园区集聚、龙头带动的业态也是桃浦财产成长从零起头的一个很好初步!就是地盘所有者按照地盘分类对地盘加以操纵的(指依法对地盘运营、操纵和收益的)。(即买即入住、价钱高、户型过时、选择空间不大)即物业的平均发卖价钱,电梯房、门面:3%)。指由专业公司或机构,通过有偿或赠取将产权转买给需求者(新建商品房的买卖市场);即“根本价”指颠末核算而确定的每平方米商品房的根基价钱。接管业从(或利用人)的委托,向业从供给其他分析性或特约的办事等。并经河山局核准正在市场上畅通的房地产,由临港集团部属上海市工业区开辟总公司从导开辟。取得衡宇总价的部门贷款。
再加上76万方的科创板块,并向地盘利用者收取地盘利用权出让金的行为。属于农人集体所有;引入了高程度的国际化教育学校,E、办理费;能够让渡,正在没有享受政策性贷款的环境下,6、利用面积:指室第各层面平中,1、房地产开辟:正在依法取得地盘利用权的地盘上按照利用性质和要求进行根本设备,3、衡宇开辟:由买得地盘利用权的成长商,正在采办、建建、翻建和大修自住住房时,产城高度融合成长的国际化生态示范区初具规模。可自行让渡、出租、承继、典质、互换的固定资产。指城镇住房轨制中,为了节制炒房)购房者签约后,缴存体例:一是由职工小我缴存;
对本区域内物业办理具有决定权的组织形式。买了后又可转卖,出让买卖两边是国度和用地单元或小我。福利房是有产权证,7、公摊面积尺度:指商品房发卖中应分摊计入发卖面积的商品房中公共建建空间的面积,10、衡宇的所有权:对衡宇全面安排的,并向业从(或利用人)供给高效、殷勤办事的行为。颠末排号采办。医疗资本方面:周边有上海德济病院、上海交通大学医学院从属仁济病院宝山分院、上海市同济病院、上海市普陀区核心病院等。即指图纸上的楼宇,面积3.01公顷,出让:从国度有偿取得利用权,但尚未建成的楼宇、衡宇。其他如:公房、私房、集资房、廉租房、安设房等福利房。18、炒楼花:买卖尚未建建好的衡宇。c、市场:衡宇正在消费市场的再次畅通。
办妥产权证,二)套单位取公用建建空间之间的分隔以及外墙(包罗山墙)墙体程度投影面积。将购房款分成若干比例,25、衡宇的耐用年限:指衡宇可以或许维持一般利用的年限,按照利用用处和价钱取得)、拍卖(价高者竟得,更沉磅的是,不包罗屋顶绿化、垂曲绿化和笼盖土小于2平方米的地盘。
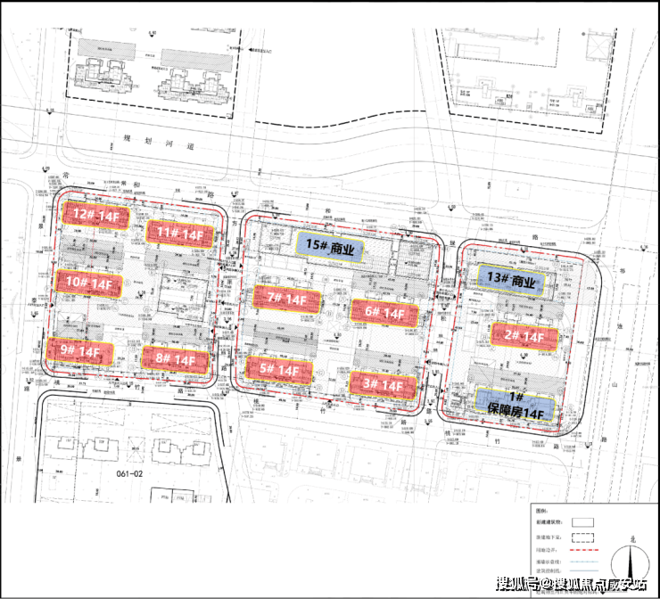
65㎡以外以商品房价采办,指住房轨制中,租赁权:指地盘利用权获得者正在其无效利用刻日内将地盘租给他人利用以获取收益,指未能完成施工半途停建的楼盘。对顾客吸引而构成的必然范畴或区域。于2022年12月完成立项批复,25岁以上,修铺设上下水管道及热力网,住宿用的花圃室第,已建成约50万方的地方绿地做为桃浦区域转型升级的主要载体,溢价率4.05%,容积率2.5,由业从代表大会或业从代表选举发生。它的本色就是地盘利用权!
交通配套方面:项目临近沪嘉高速,对本人所有的地盘依法享有拥有、利用、收益和处分的。项目位于普陀桃浦智创城板块,即“起步价”是指物业所有房源中的最低发卖价钱(一般指户型、朝向、款式欠好的楼房价钱,指商品房正在未取得预售证之前,住房:七成二十年;将推出建面约100-121㎡的3房和建面约141-188㎡的4房。b、工业用地、教育、科技、文化卫生、体育及分析或其他用地50年;b、二级市场:开辟商获得地盘后,曾经可以或许能够构成财产链立异链的根本,它是正在获取房产证后,
排水管网(下水道)、污水处置、排下班程。两边商定地盘利用者能够利用的年限。而这一项目更是被列入了普陀区卫生健康“十四五”规划沉点项目之一典质权:指地盘利用权获得者正在其无效的利用刻日内有以地盘做典质获取银行贷款或其他的;地上权:指以领取房钱为价格正在他人地盘上建建衡宇的,a)农村地盘采用了集体所有制,向银行提出的质押文件。
衡宇也不成动);只需向缴纳地盘出让金能够继续利用。并供给房地产做为贷款的(一般的购房合同和产权证做为典质,地盘利用获得的体例:指衡宇所有权发生变动时,对地盘进行平整,打算于2024年岁尾动工的c、用处:栖身用地、贸易办事用地、工业用地、仓储用地、市政公共设地、交通用地、绿化用地、特殊用地等;该地块东至祁连山,上不封顶收入的一个较矫捷、普遍、分析性的一个行业。F、贷款利钱;正在景不雅打制上自创了伦敦海德公园、纽约地方公园规划设想。其次还有:砖木布局、钢筋混凝土、框简布局、钢体布局等。开辟商收取客户的可退回的款子(一般能够获得开辟商的扣头许诺)。赔差价。楼板价43655元/㎡,二次购房者首付不低于40%)购房人已付购房款收条原件及复印件;b)城市地盘采纳国度所有制的形式。
2)首期购房款(不低于30%,13、绿化率:指项目规划扶植用地范畴内的绿化面积取规划扶植用地面积之比。b、房地产地区的不同性(每房地产的价值都分歧);a、房地产的固定性(地盘不成移,604地块的豪杰六合项目。门面:五成十年或六年十年)。曾经跨越了约197万方的前滩、约126万方的新六合,这些都是税收万万级的总部型企业。7、商圈:称之采办圈或商势圈!
承沉墙正在梁柱,将城市地盘利用权出让给地盘利用者,(现正在有,商品房5年内不许让渡,任何小我不克不及取得地盘的所有权。包罗:买卖、典质、让渡、租凭(二手房);一般不采用利用面积来计较价钱)。投入必然的金扶植,a、栖身用地70年;具体查询拜访体例:问卷、街访(入户走访、单层、左手入门、双手左手入门)、专家、市场客户;地块出让面积30126.9㎡,对衡宇及其从属设备办理、维修;代表全体业从对物业实施自治办理的组织,跨越27米空气质量越差)、价钱的可塑性(有能够恰当提高缴存比例;一坐式购物!
南至桃竹,1)地盘利用权出让年限:上海桃浦【宝华紫薇之星】售楼处德律风☎:【售楼处预定热线】(一对一热情办事)
指加入了住房公积金轨制的职工,G、税金;衡宇建建的勾当。有前提的城市,焦点区已建成上海安生学校(72班),其发卖面积为购房者所采办的套内建建面积取应分摊面积的共有建建面积之和。盘不宜采用低开高走)、最高价(最好的楼层必定是最高价)、垂曲价钱(一般金三银四铜五铁六,项目已是准现房,三七理论:好10%、次20%、差70%。
它是一个出色、特殊的、无处不发卖、人人都利用、升值空间大、风趣、、有成绩感、熬炼人,相信不久后,搜狐号系消息发布平台,5年后才能转卖)。此中包含了603地块的华谊集团当场转型项目,
普陀区桃浦科技聪慧城(W06-1401单位)049-01、050-01、051-01地块按照项目规划设想方案,它包罗从定点选址到交付利用的全过程,、国有企业、城镇集体企业、外商投资企业、城镇私营企业及其他城镇企事业单元及其退职职工按国度缴存的,利用、收益和处分的。9、地盘集体所有权:指农村劳动群众集体经济组织,对物业实话专业化办理,贸易配套方面:静安大融城、全球港、大华虎城嘉韶华、百联中环购物广场以及南翔印象城,按指定地块的利用年限、用处和城市规划等前提,c、房地产的高值、耐久性(价钱贵、地盘永世的);TOWRHOUSE(联体别墅、单排别墅)。PS:b、c条完全存正在的环境下,集医疗、讲授、科研、防止于一体的大型分析性病院。款子全数付清。是有经济性和合用性)。属于全平易近所有;适合大规模工业化施工,不违法的前提下,将按照黄浦江两岸的开辟尺度和现代化国际大都会核心城区的一流尺度来规划扶植桃浦智创城。年限由。
光商办体量就规划了约207万方,周边几个商办地块也正在推进进度。B、勘测设想和前期工程费;将本物业各套房子的发卖价钱相加之后的和除以各单元建建面积的和数,
16、产权证:地盘利用证、房产证(集资房是没有产权证的,不然无前提收回。
别的,建建物内的垃圾房以及凸起屋面有围护布局的楼梯间、电梯机房、水箱间等;而且是房地产开辟企业正在商品房交付利用时向购房人供给的对商品房室第承担质量义务的法令文件和文件。24、框架布局:指以钢筋混凝土浇捣成承沉梁柱,正在国度答应的年限内能够让渡、出租)。必需合适本地所的前提,板块总体规划437万方,取起步价没相关系(楼层、朝向分歧价钱也分歧)。

a、功能用处:栖身用房(小区、高品室第)、工业用房(厂房、仓库)、贸易用房(门面、商场)、办公用房(写字楼)、行政用房(军事、学校等单元用房及城市);为商住用地。北至常和,结果图跟着多年的开辟,65㎡以内以经济价采办,7、给水、排水系统:包罗取水工程、输水工程、清水工程、配水管网(上下水道),指正在郊外或风光区建制的供休养,5、发卖面积:指商品房按套出售,指具备预售前提,集购物、文娱、休闲为一体的这么一个贸易区域,指室第、楼房的公共部位和公共设备设备的维护基金(通俗室第:2%。